9.2 / 10 2041 reviews 
 

Van Berckelstraat, 's-Hertogenbosch

Gemeubileerd!
van Berckelstraat 's-Hertogenbosch
€1.875,-
per maand
€ 1.875,-
per maand
van Berckelstraat 's-Hertogenbosch
  • TypeAppartement
  • Interieur Gemeubileerd
  • Woonoppervlakte95 m²
  • Kamers3
  • Slaapkamers2
  • Aangeboden sinds30-01-2026
  • Max. huurperiode 24 maanden 
  • Beschikbaarheid In overleg
Vraag informatie aan

Omschrijving van Berckelstraat in 's-Hertogenbosch

Dit goed ingedeelde appartement met 2 slaapkamers ligt aan de Zuid-Willemsvaart en wordt verhuurd inclusief eigen parkeerplaats op een afgesloten parkeerterrein, uniek in de binnenstad!

 

Bent u geïnteresseerd? Vraag een bezichtiging aan via de website! Telefonisch kunnen wij uw aanvraag niet behandelen.

Het appartement beschikt ook over een eigen berging en parkeerplaats op het afgesloten terrein aan de achterzijde van het complex! Wel de voordelen van de binnenstad, en niet de lasten.

Aan de voorzijde heeft u zicht op de Aa en met 5 minuten lopen staat u aan de Markt. De ligging van dit appartement is zeker ideaal. Diverse winkels, een bioscoop, sfeervolle restaurants en terrasjes zijn in de directe omgeving voldoende aanwezig. Gaat u liever de natuur in, dan is 'Het Bossche Broek' met de Zuiderplas om de hoek. Natuurlijk zijn er vanaf 's-Hertogenbosch prachtige wandel- en fietstochten te maken. Ook zijn er diverse sportverenigingen en scholen voor jong en oud.


De voordeur bevindt zich aan een auto vrije zone, alleen openbaar vervoer maakt gebruik van deze doorgang in en uit de binnenstad. Er is achter de centrale voordeur zowel een lift als ook een brede trap beschikbaar. Het appartement ligt op de eerste verdieping.

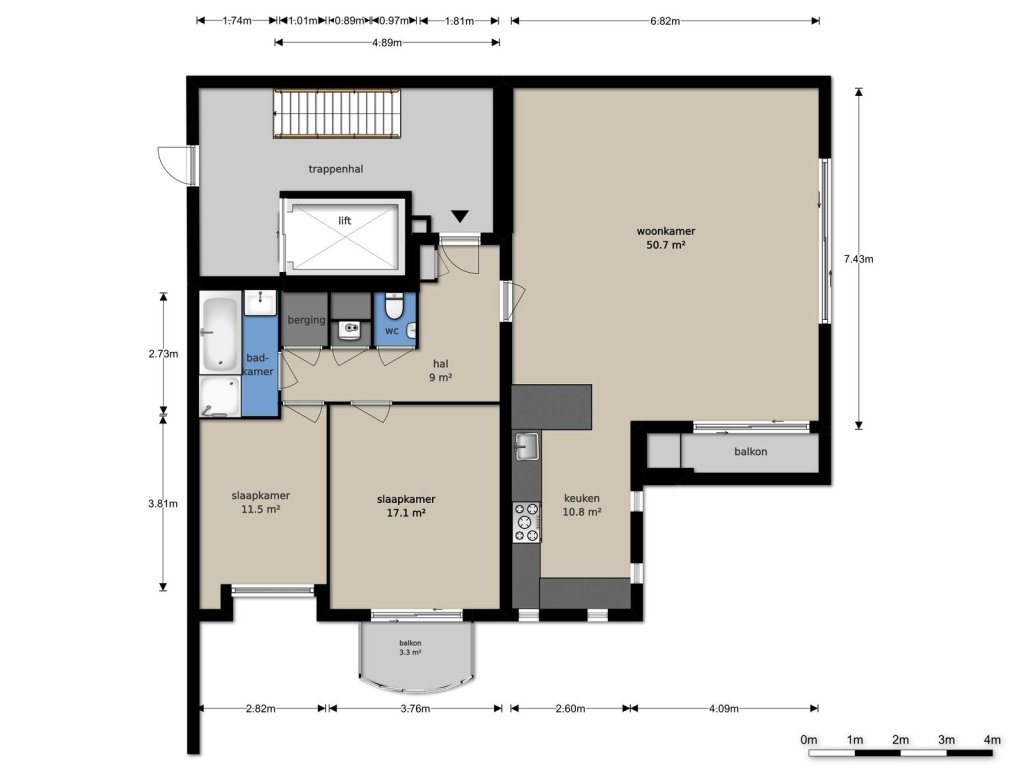
Indeling appartement;

In de hal treft u de toiletruimte, meterkast en installatieruimte aan met ruimte waar de wasmachine en wasdroger aanwezig zijn. De woonkamer is bijzonder ruim en er komt voldoende daglicht binnen door de aanwezige raampartijen. Door het hoge plafond, de lichte wanden, moderne verlichting en de lichte laminaatvloer is het een aangename ruimte. De open keuken is in een U-opstelling geplaatst met een ontbijtbar, u kunt gebruik maken van een 5-pits gasfornuis, afzuigkap, combi-oven, koelkast, diepvries en vaatwasmachine.

Vanuit de hal is tevens de badkamer met douche, ligbad en wastafel met spiegelkast toegankelijk.

Hier bevinden zich ook twee ruime slaapkamers (ca. 17 en 11,5 m²). De grootste kamer geeft toegang tot een tweede balkon aan de straatzijde.

Tevens heeft u de beschikking over een prive berging en parkeerplaats op de begane grond.

 

De huurprijs is € 1875,- per maand inclusief parkeerplaats, exclusief servicekosten (€ 50,-) en verbruikskosten van gas, water, elektra en internet.

Waarborgsom staat gelijk aan twee keer de maandhuur, oftewel € 3750,-.

 

Lees meer
Neem contact op

123Wonen Den Bosch
Rompertpassage 37A
5233 AP 's-Hertogenbosch

T  073 - 611 15 82
E  denbosch@123wonen.nl

Specificaties

  • Max. huurperiode 24 maanden 

Bouw

  • Soort Woningen
  • Type Appartement
  • Bouwjaar 1997

Algemeen

  • Beschikbaarheid In overleg
  • Max. huurperiode 24
  • Interieur Gemeubileerd

Energie

  • Energielabel A

Indeling

  • Kamers 3
  • Slaapkamers 2
  • Balkon Ja

Afmetingen

  • Woonoppervlakte 95 m²
  • Balkon oppervlakte 4 m²
Lees meer

Schrijf je in voor onze woningmail, actueel aanbod!

Foto's

  Pand
  Pand
  Pand
  Pand
  Pand
  Pand
  Pand
  Pand
  Pand
  Pand
  Pand
  Pand
  Pand
  Pand
  Pand
  Pand
  Pand
  Pand

Vergelijkbaar aanbod 's-Hertogenbosch

's-Hertogenbosch
Parcivalring
€ 1.925,- p/mnd
Details
's-Hertogenbosch
Sint Annaplaats
€ 1.895,- p/mnd
Details
's-Hertogenbosch
Postelstraat
€ 1.795,- p/mnd
Details

Meer informatie aanvragen