9.2 / 10 2006 reviews 
 

Singravenlaan, Arnhem

Wonen met New Yorkse flair in hartje Arnhem (foto's ter illustrat...
Singravenlaan Arnhem
€1.307,-
per maand
€ 1.307,-
per maand
Singravenlaan Arnhem
  • TypeAppartement
  • Interieur Gestoffeerd
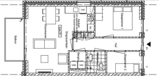
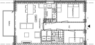
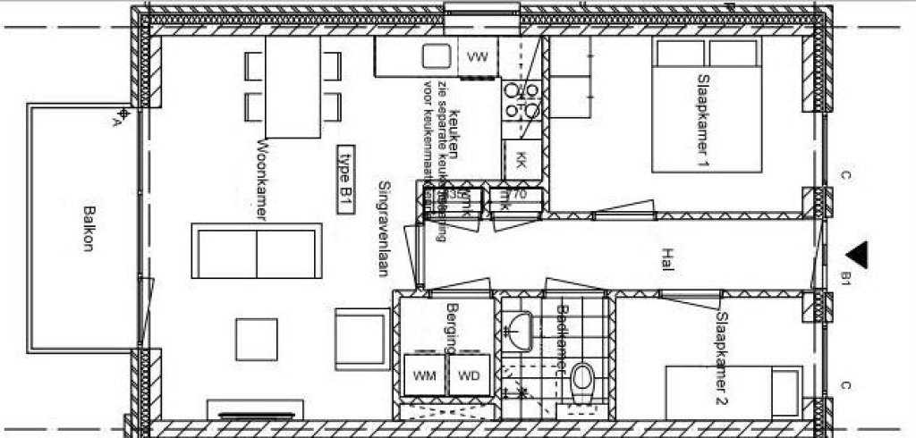
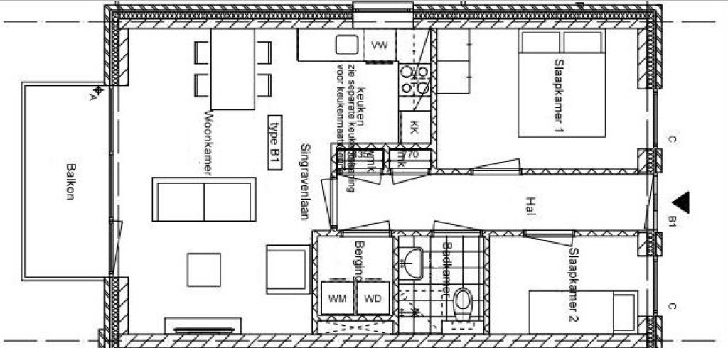
  • Woonoppervlakte55 m²
  • Kamers1
  • Slaapkamers2
  • Aangeboden sinds10-11-2025
  • Max. huurperiode Minimaal 24 mnd
  • Beschikbaarheid Vanaf 01-12-2025
Vraag informatie aan

Omschrijving Singravenlaan in Arnhem

Wonen met New Yorkse flair in hartje Arnhem (foto's ter illustratie)
Ontdek het moderne stadsleven in het gloednieuwe appartementencomplex aan de Singravenlaan – een unieke plek waar stijl, comfort en duurzaamheid samenkomen.
Het complex bestaat uit drie eigentijdse gebouwen die stuk voor stuk zijn ontworpen met oog voor detail en kwaliteit.

De architectuur ademt een New Yorkse uitstraling: stoere stalen accenten, grote raampartijen en veel natuurlijk licht creëren een industriële, maar warme sfeer. Binnen geniet je van hoogwaardige afwerking, een luxe keuken met topapparatuur en een stijlvolle badkamer. Alles is ontworpen voor een zorgeloos, energiezuinig en comfortabel leven.

De ligging aan de Singravenlaan is ideaal – rustig én centraal. Je bevindt je vlak bij het levendige centrum van Arnhem én Velp, met winkels, scholen, restaurants en een groot multifunctioneel park binnen handbereik. De uitstekende uitvalswegen en OV-verbindingen zorgen ervoor dat je moeiteloos reist naar Nijmegen, Apeldoorn, Zutphen, Utrecht en de rest van de regio.

Dit is wonen op z’n best: modern, duurzaam en met een vleugje wereldse allure.
Laat deze kans niet aan je voorbijgaan – beleef het wonen met karakter aan de Singravenlaan!

Bijzonderheden: 

- Zo goed als nieuwe keukens voorzien van alle nodige apparatuur
- Twee slaapkamers
- Aan de achterkant van dit blok waar de woonkamer en het balkon zich bevinden komt ’s morgens heerlijk de zon op (ligging zuid-oost)
- Inclusief eigen parkeerplaats en berging
- Huisdieren niet toegestaan
- Binnen roken niet toegestaan

- Minimaal 24 maanden
- Beschikbaar 1 december 2025
- Inkomenseis van toepassing (3x kale huur)

Kosten:

Kale huur € 1087,27 
Servicekosten € 75,-
Afschrijving € 40,-
Parkeerplaats € 105,- - + 

Totale huurprijs € 1.307,27
Borg € 2.614,54

 

 

 

Lees meer
Neem contact op

123Wonen Arnhem
Velperweg 86
6824 HL Arnhem

T  026 - 747 00 10
E  arnhem@123wonen.nl

Specificaties

  • Max. huurperiode Minimaal 24 mnd

Bouw

  • Soort Woningen
  • Type Appartement
  • Bouwjaar 2023

Algemeen

  • Beschikbaarheid Vanaf 01-12-2025
  • Max. huurperiode minimaal 24 mnd
  • Interieur Gestoffeerd
  • info Niet toegestaan

Energie

  • Energielabel A++

Indeling

  • Kamers 1
  • Slaapkamers 2
  • Balkon Ja

Voorziening

  • Parkeerplaats Ja
  • Lift Ja

Afmetingen

  • Woonoppervlakte 55 m²
  • Balkon oppervlakte 5 m²
Lees meer
  • Wijk en buurt
    Over het Lange Water
  • Bevolking
    Gem. grootte huishouden
    1.8 personen
  • Detailhandel
    Grote supermarkt
    1km
  • Inkomen
    Gem. inkomen
    €25.600 p/j
  • Vervoer
    Station
    2.2km
  • Wonen
    Gem. woningwaarde
    €188.000
    Koopwoningen
    40%

Schrijf je in voor onze woningmail, actueel aanbod!

Foto's

  Pand
  Pand
  Pand
  Pand
  Pand
  Pand
  Pand
  Pand
  Pand
  Pand
  Pand
  Pand
  Pand
  Pand
  Pand
  Pand

Vergelijkbaar aanbod Arnhem

Arnhem
Wichard van Pontlaan
€ 1.340,- p/mnd
Details
Arnhem
1e Wijkstraat
€ 1.220,- p/mnd
Details

Meer informatie aanvragen