9.2 / 10 2013 reviews 
 

Olympiastraat, Breda

Sfeervol wonen en toch dicht bij het centrum!
Olympiastraat Breda
€1.595,-
per maand
  Olympiastraat Breda Nieuw
€ 1.595,-
per maand
Olympiastraat Breda
  • TypeAppartement
  • Interieur Gestoffeerd
  • Woonoppervlakte79 m²
  • Kamers3
  • Slaapkamers2
  • Aangeboden sinds01-12-2025
  • Max. huurperiode 30 maanden  Te huur voor circa 2,5 jaar!
  • Beschikbaarheid Vanaf 08-12-2025
Vraag informatie aan

Omschrijving Olympiastraat in Breda

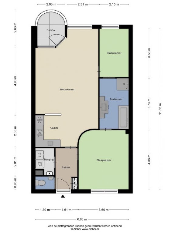
Op toplocatie (Sportpark) op loopafstand van het centrum van Breda royaal en licht 3- kamerappartement met balkon op het westen. Het appartement is gelegen op de 2de verdieping van een kleinschalig appartementencomplex. Het appartement bevindt zich in een rustige en fijne woonomgeving op korte afstand van het centrum van Breda. Het theater, scholen , horeca en sportfaciliteiten evenals het Wilhelminapark liggen op loopafstand.

Het complex is voorzien van een lift, en een intercom en is goed bereikbaar. De woning is voorzien van o.a. een open keuken, ruime woonkamer met balkon, 2 slaapkamers waarvan een ruime badkamer met ligbad, douche en een wastafelmeubel.

Indeling;
Ruime entree met brievenbussen- en video-intercominstallatie, toegang tot de lift en naar buiten. 

Appartement;

Entree is voorzien van een video intercom, meterkast en geeft toegang tot woonkamer, toilet met fontein, slaapkamer en technische ruimte met de mechanische ventilatie unit, cv-ketel, aansluitingen wasmachine en droger. De vloeren zijn voorzien van tegelvloer.

Ruime, lichte woonkamer met open keuken en biedt toegang tot het op het westen gelegen balkon (5 m²). De keuken is uitgerust van een 4-pits gaskookplaat, een schouwkap, diepvries, koelkast en rvs-spoelbak.

Het appartement beschikt over twee ruime slaapkamers. Een aan de achterzijde (ca. 3,70 x 4,40 m) en een aan de voorzijde (ca. 2,10 x 3,6 m). Tussen de slaapkamers bevindt zich de ruim opgezette badkamer met een bad, aparte douche en badkamermeubel met wasbak.

Bijzonderheden; 
- Het appartement is uitstekend geïsoleerd en voorzien van isolatieglas;
- Het appartement is voorzien van kunststof kozijnen;
- Verwarming middels een HR combiketel;
- Het fraaie stadcentrum met winkels, theaters, parken en scholen ligt om de hoek;
- Bijdrage servicekosten € 55,- per maand
- Borg 2 maanden huur

Lees meer
Neem contact op

123Wonen Breda
Verlengde Poolseweg 16
4818 CL Breda

T  076-762 00 86
E  breda@123wonen.nl

Specificaties

  • Max. huurperiode 30 maanden  Te huur voor circa 2,5 jaar!

Bouw

  • Soort Woningen
  • Type Appartement
  • Bouwjaar 1997

Algemeen

  • Beschikbaarheid Vanaf 08-12-2025
  • Max. huurperiode 30 te huur voor circa 2,5 jaar!
  • Interieur Gestoffeerd

Energie

  • Energielabel B
  • Aanwezige isolatie Spouwisolatie, muurisolatie, vloerisolatie

Indeling

  • Kamers 3
  • Slaapkamers 2
  • Aparte douche Ja

Afmetingen

  • Woonoppervlakte 79 m²
Lees meer

Schrijf je in voor onze woningmail, actueel aanbod!

Foto's

  Pand
  Pand
  Pand
  Pand
  Pand
  Pand
  Pand
  Pand
  Pand
  Pand
  Pand
  Pand
  Pand
  Pand
  Pand
  Pand

Vergelijkbaar aanbod Breda

Breda
Adriaan van Bergenstraat
€ 1.575,- p/mnd
Details

Meer informatie aanvragen