9.2 / 10 2017 reviews 
 

Helmersstraat, Den Haag

15 JAN TOT 15 NOV: GEMEUBILEERDE DUBBELE BOVENWONING IN ZEEHELDENKWART...
Helmersstraat Den Haag
€2.800,-
per maand
€ 2.800,-
per maand
Helmersstraat Den Haag
  • TypeBovenwoning
  • Interieur Gemeubileerd
  • Woonoppervlakte140 m²
  • Perceelgrootte80 m²
  • Kamers4
  • Slaapkamers3
  • Aangeboden sinds10-12-2025
  • Max. huurperiode 10 maanden 
  • Beschikbaarheid Vanaf 15-01-2026
Vraag informatie aan

Omschrijving Helmersstraat in Den Haag

15 JAN TOT 15 NOV: GEMEUBILEERDE DUBBELE BOVENWONING IN ZEEHELDENKWARTIER 

BESCHIKBAAR VOOR 10 MAANDEN!

In het gezellige Zeeheldenkwartier, met alle voorzieningen in de buurt (winkels, restaurants, kinderopvang, OV), ligt deze heerlijke, gemeubileerde, dubbele bovenwoning van ca. 140 m2. De woning beschikt over 3 slaapkamers, waarvan 1 op de ruime zolderverdieping, een sfeervolle open keuken, een moderne badkamer met grote inloopdouche.

Altijd al in het Zeeheldenkwartier willen wonen? Die mogelijkheid is er nu, vraag vandaag nog een bezichtiging aan.

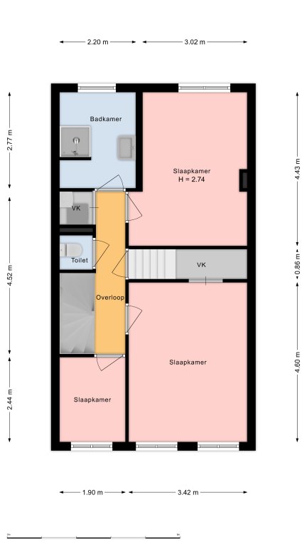
INDELING:

Entree op straatniveau, trap naar eerste verdieping. 

Eerste verdieping.

Overloop met toegang tot de woonkamer en garderobe. Separaat toilet met fonteintje. 

De riante woonkamer is handig ingedeeld in een woon- en eetkamer. Dankzij de grote raampartijen beschikt de woonkamer ook over veel natuurlijk licht. De luxe, open keuken beschikt over alle benodigde apparatuur zoals gaskookplaat met afzuigkap, een combi-oven, vaatwasser, ingebouwde koel-vriescombinatie. Aan de achterkant is een heerlijk zonnig terras. 

Tweede verdieping. 

Op deze verdieping bevinden zich 2 ruime slaapkamers. De eerste ruime slaapkamer is met een 2-persoonsbed en een kledingrek voor uw kleding.  Op de 2e slaapkamer bevinden zich twee 1-persoonsbedden en is er voldoende ruimte voor kleding. Hier staat ook de wasmachine en de droger. Er is ook op deze verdieping een tweede toilet.

Er is een ruime badkamer met grote inloopdouche, een wastafel in een mooi meubel, waar ook veel spullen neergelegd kunnen worden.

Derde verdieping

Op de riante zolderverdieping is een 2-persoonsbed en een ingebouwde kledingkast. Ook staat er één luxe fauteuil. 

Het energielabel is E. Het huis is voorzien van dubbele beglazing. Verwarming en warm water is door middel van CV combiketel.  

Huurprijs: € 2.800,-- per maand, excl. gas, elektriciteit, water, Waarborgsom: 1,5 maand huur.  Voorschot G/E/W € 275,--, TV/Internet € 85,-- per maand. Beschikbaar voor 10 maanden vanaf 15 januari - 15 november 2026.

Bijzonderheden:

- Woonoppervlak 140 m2 en energielabel E.

- Woon- eetkamer, luxe & complete keuken, terras, 3 slaapkamers, badkamer, 2 toiletten.

- Woonoppervlak ca. 140 m2, voorzien van dubbele beglazing.

- Volledig gemeubileerd.

- Uitstekende locatie.

- Contract  vanaf 15 januari – 15 november 2026.

- Huisdieren niet toegestaan.

Voor meer informatie of voor het aanvragen van een bezichtiging neemt u contact op via denhaag@123wonen.nl 

Lees meer
Neem contact op

123Wonen Den Haag
Laan van 's-Gravenmade 74
2495 AJ Den Haag

T  070 - 221 08 41
E  denhaag@123wonen.nl

Specificaties

  • Max. huurperiode 10 maanden 

Bouw

  • Soort Woningen
  • Type Bovenwoning
  • Bouwjaar 1900

Algemeen

  • Beschikbaarheid Vanaf 15-01-2026
  • Max. huurperiode 10
  • Interieur Gemeubileerd
  • Huisdieren gewenst Ja
  • info In overleg

Energie

  • Energielabel E

Indeling

  • Kamers 4
  • Slaapkamers 3
  • Aparte douche Ja
  • Balkon Ja

Afmetingen

  • Woonoppervlakte 140 m²
  • Perceeloppervlakte 80 m²
  • Woninginhoud 491 m³
  • Balkon oppervlakte 6 m²
Lees meer
  • Wijk en buurt
    Zeeheldenkwartier
  • Bevolking
    Gem. grootte huishouden
    1.6 personen
  • Detailhandel
    Grote supermarkt
    0.4km
  • Inkomen
    Gem. inkomen
    €37.400 p/j
  • Vervoer
    Station
    3km
  • Wonen
    Gem. woningwaarde
    €403.000
    Koopwoningen
    32%

Schrijf je in voor onze woningmail, actueel aanbod!

Vergelijkbaar aanbod Den Haag

Den Haag
Jozef Israëlslaan
€ 2.750,- p/mnd
Details
Den Haag
Bezuidenhoutseweg
€ 2.700,- p/mnd
Details
Den Haag
Wim Sonneveldplein
€ 2.750,- p/mnd
Details

Meer informatie aanvragen