9.2 / 10 2013 reviews 
 

Doorniksestraat, Den Haag

PER DIRECT: GESTOFFEERD 7-KAMER HERENHUIS OP LOOPAFSTAND VAN STRAND! 
Doorniksestraat Den Haag
€4.975,-
per maand
€ 4.975,-
per maand
Doorniksestraat Den Haag
  • TypeHerenhuis
  • Interieur Gestoffeerd
  • Woonoppervlakte211 m²
  • Perceelgrootte246 m²
  • Kamers7
  • Slaapkamers6
  • Aangeboden sinds30-10-2025
  • Max. huurperiode minimaal 12 maanden, minimum of 12 months
  • Beschikbaarheid Per direct
Vraag informatie aan

Omschrijving Doorniksestraat in Den Haag

PER DIRECT: GESTOFFEERD 7-KAMER HERENHUIS OP LOOPAFSTAND VAN HET STRAND! 

Een prachtig herenhuis, in uitstekende staat, in het Belgisch Park, met maar liefst 6 slaapkamers, 2 badkamers en 3 toiletten! Verder beschikt dit ruime huis over prachtige authentieke details, zoals een marmeren vloer in de hal en klassieke radiatoren, een lichte woonkamer en suite, een grote luxe keuken, tuin op het zuiden en een ruim balkon op de 1e verdieping, aan de voor- en achterkant van het huis. De woning is centraal gelegen, op korte afstand van het strand van Scheveningen! Het is nabij het Westbroekpark en op loopafstand van het Kurhaus, circustheater en winkels. Het stadscentrum van Den Haag is snel bereikbaar met de fiets, het openbaar vervoer of de auto. Naar de Internationale School Den Haag (ISH) is het slechts 9 km. Het Lycée Français Vincent van Gogh is op slechts 2,4 km afstand. 

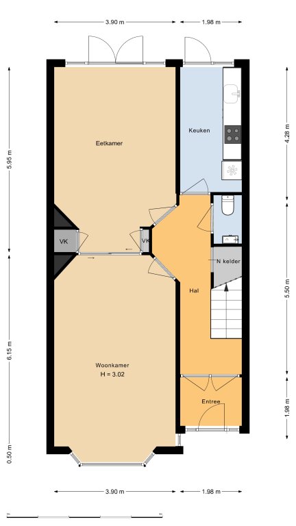
Indeling:

Begane grond:

Riante voortuin met fietsenberging, mooie ruime klassieke hal met meterkast en een gang met marmeren vloer. In de gang is de toilet met een klassiek fonteintje. Via een deur in de gang gaat u naar de ruime kelder, met veel ruimte voor opslag of uw wijnflessen (gezien het goede klimaat), waar ook de CV-ketel is.  Er is een zeer ruime woonkamer en suite (ca. 49 m2, met gordijnen) met een mooie laminaatvloer, grote raampartijen en openslaande deuren naar de riante tuin. Naast de woonkamer is de ruime moderne en volledig nieuwe keuken met div. inbouwapparatuur, een inductiekookplaat, een vaatwasser, afzuigkap, koel- vriescombinatie, combi-oven en veel kastruimte. In de ruime groene tuin, ca. 105 m2, (met elektrisch zonnescherm), staat een schuur om bijv. uw tuinmeubelen in op te bergen. 

1e verdieping:

Ruime overloop, 3 slaapkamers (met laminaatvloer, Luxaflex en gordijnen), waarvan 1 zeer grote slaapkamer (ca. 20 m2) aan de voorkant, met een klassieke wastafel, een grote vaste kast en een ruim balkon. De 2e slaapkamer (6,7 m2) is naast de eerste slaapkamer en heeft ook toegang tot het balkon. De 3e slaapkamer is ook zeer ruim (ca. 23 m2) en ook uitkomend op het balkon aan de andere kant. Deze kamer heeft een vaste kast. De badkamer met wastafel met kastje eronder, heeft een ligbad (met klassieke kranen), waarin u ook kunt douchen. Verder is er een bidet.

2e verdieping:

Ruime overloop met toilet, 3 slaapkamers (met laminaatvloer, Luxaflex en gordijnen). Er is een slaapkamer aan de tuinzijde (ca. 12 m2), met een vaste kast en opbergruimte in het schuine gedeelte van de ruimte. De 2e en 3e slaapkamer (ca. 12 en 7 m2) zijn aan de voorkant van het huis. De 2e slaapkamer heeft een vaste kast. Er is verder een mooie badkamer met moderne douche, een wastafel en de wasmachine en droger staan klaar voor gebruik!

Huurprijs: €  4.975,-- per maand, excl. gas, elektriciteit, water, TV/Internet. Huurperiode: onbepaalde tijd, tijdens het 1e jaar kunt u niet opzeggen.

De borg bedraagt 2 maanden huur.

Bijzonderheden: 

-          Woonkamer en suite, keuken, 6 slaapkamers, 2 badkamers & 3 toiletten, tuin, berging.

-          Op loopafstand van Scheveningse strand, verder centraal gelegen t.o.v. voorzieningen.

-          Slechts 9 km van Internationale School Den Haag (ISH). Het Lycée Français Vincent van Gogh is op slechts 2,4 km afstand. 

-          Het huis is binnen recent geschilderd en is in uitstekende staat!

-          Beschikbaar voor 1 persoon of stel (met kinderen).

-          Huurprijs is excl. kosten: gas, water, licht, int. en TV. Waarborgsom: 2 maanden huur.

-          Minimale huurperiode bedraagt 12 maanden.

-          Geen huisdieren.

Voor meer informatie of het maken van een bezichtigingsafspraak kunt u contact met ons opnemen via denhaag@123wonen.nl 

Lees meer
Neem contact op

123Wonen Den Haag
Laan van 's-Gravenmade 74
2495 AJ Den Haag

T  070 - 221 08 41
E  denhaag@123wonen.nl

Specificaties

  • Max. huurperiode minimaal 12 maanden, minimum of 12 months

Bouw

  • Soort Woningen
  • Type Herenhuis
  • Bouwjaar 1930

Algemeen

  • Beschikbaarheid Per direct
  • Max. huurperiode minimaal 12 maanden, minimum of 12 months
  • Interieur Gestoffeerd

Energie

  • Energielabel C
  • CV-ketel hr
  • CV-ketel brandstof Gas

Indeling

  • Kamers 7
  • Slaapkamers 6
  • Aparte douche Ja
  • Tuin Ja
  • Tuin ligging Zuid
  • Balkon Ja
  • Balkon ligging Z

Voorziening

  • Parkeerplaats Ja

Afmetingen

  • Woonoppervlakte 211 m²
  • Perceeloppervlakte 246 m²
  • Woninginhoud 730 m³
  • Tuin oppervlakte 105 m²
  • Balkon oppervlakte 5 m²
Lees meer
  • Wijk en buurt
    Belgisch Park
  • Bevolking
    Gem. grootte huishouden
    1.9 personen
  • Detailhandel
    Grote supermarkt
    0.5km
  • Inkomen
    Gem. inkomen
    €38.600 p/j
  • Vervoer
    Station
    4.7km
  • Wonen
    Gem. woningwaarde
    €457.000
    Koopwoningen
    60%

Schrijf je in voor onze woningmail, actueel aanbod!

Vergelijkbaar aanbod Den Haag

Meer informatie aanvragen