9.2 / 10 2037 reviews 
 

Anton Philipslaan, Eindhoven

Gemeubileerd high end apartment in de binnenstad! 2 slaapkamers en pri...
Anton Philipslaan Eindhoven
€2.300,-
per maand
€ 2.300,-
per maand
Anton Philipslaan Eindhoven
  • TypeAppartement
  • Interieur Gemeubileerd
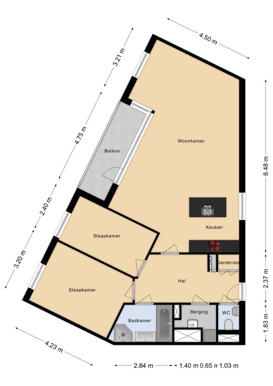
  • Woonoppervlakte98 m²
  • Perceelgrootte100 m²
  • Kamers3
  • Slaapkamers2
  • Aangeboden sinds04-02-2026
  • Max. huurperiode min. 12, indefinite
  • Beschikbaarheid Per direct
Vraag informatie aan

Omschrijving Anton Philipslaan in Eindhoven

123Wonen Eindhoven biedt aan
Luxe, volledig gemeubileerd 3-kamer appartement (ca. 98 m²) met balkon, privé parkeerplaats en community-voorzieningen, 2 slaapkamers in – Hartje Eindhoven. Energielabel A+!

Wonen op hoog niveau, midden in de stad maar met rust, privacy en comfort. Dit high-end afgewerkte 3-kamer appartement van circa 98 m² ligt in het geliefde Hartje Eindhoven en is volledig instapklaar. Het appartement wordt gemeubileerd verhuurd en beschikt over een zonnig balkon, twee ruime slaapkamers, een eigen parkeerplaats in de afgesloten parkeergarage en toegang tot unieke community-voorzieningen.

Het uitzicht richting het authentieke Strijp en het iconische “Koffiehuisje” maakt het geheel compleet.

 
Indeling & wooncomfort
Bij binnenkomst ervaar je direct de luxe hotel-chique uitstraling. De ruime hal is voorzien van een maatwerk garderobekast (met daarin de meterkast) en geeft toegang tot alle vertrekken.

Via de stijlvolle steel-look houten deur met glas kom je in de lichte woonkamer. Grote raampartijen van vloer tot plafond zorgen voor een overvloed aan daglicht. Overdag werkt het glas spiegelend en in de avond creëert de balkonverlichting opnieuw een spiegelend effect, wat zorgt voor uitzonderlijk veel privacy – een zeldzaamheid midden in de stad.

De open keuken met kookeiland is modern, strak wit uitgevoerd en compleet uitgerust met hoogwaardige inbouwapparatuur, waaronder een inductiekookplaat, vaatwasser en combi oven-magnetron. De woonkamer is praktisch én stijlvol ingericht: een geïntegreerde thuiswerkplek is fraai verwerkt in de maatwerkkastenwand, terwijl er daarnaast volop ruimte is voor een grote eettafel en een comfortabele zithoek.

 
Buitenruimte
Het balkon vormt een verlengstuk van de woonkamer en ligt gunstig voor de middagzon. Dankzij de omliggende bomen is er een prettige balans tussen zon en schaduw. Het balkon blijft droog en beschikt over een slim weggewerkt opbergvak onder het zitkussen. De vloer is afgewerkt met luxe houten planken.

 
Duurzaam en stil wonen
Het appartement beschikt over vloerverwarming en vloerkoeling via betonkernactivering, wat zorgt voor een constant en aangenaam binnenklimaat. De warmtevoorziening verloopt via een warmtewisselaar waarvan beheer en onderhoud zijn geregeld. Daarnaast is er balansventilatie met warmteterugwinning.

De uitstekende isolatie van deuren en kozijnen maakt dat geluiden van buiten – zelfs van het Philips Stadion – binnen niet hoorbaar zijn.

 
Slaapkamers & sanitair
Er zijn twee ruime slaapkamers. De master bedroom is royaal opgezet; de tweede slaapkamer is flexibel in te richten als logeerkamer, kinderkamer of thuiskantoor.
De moderne badkamer is voorzien van een ligbad, inloopdouche en wastafelmeubel met opbergladen. Daarnaast is er een separaat toilet en een interne berging met aansluitingen voor wasapparatuur.

 
Parkeren, berging & extra’s
• Privé parkeerplaats in afgesloten parkeergarage (kentekenherkenning)
• Eigen berging
• Afgesloten fietsenstalling

 
Binnentuin & community
De gezamenlijke binnentuin is uitsluitend toegankelijk voor bewoners en biedt volop groen, zitplekken en picknicktafels onder een pergola – ideaal om te ontspannen of iets te vieren.

Daarnaast is er The Living: een gezamenlijke huiskamer waar bewoners kunnen werken, afspreken of samenkomen. Dankzij de community manager worden regelmatig activiteiten georganiseerd. Ook is er een huismeester aanwezig voor kleine technische zaken.

 
Locatie
Gelegen naast het Philips Stadion, op loopafstand van het centrum, Strijp-S en het station. Supermarkten, horeca, winkels en sportvoorzieningen liggen letterlijk om de hoek. De omgeving blijft zich ontwikkelen met onder andere het Victoriapark en nieuwe hotspots op Strijp-S.

 
Huurvoorwaarden:

Huurprijs: € 2.300,- per maand;

Inclusief: meubilering, stoffering, servicekosten en privé parkeerplaats;

Exclusief, verwarming, energie en gemeentelijke belastingen;

Waarborgsom: € 4.000,-;
Energielabel A+;
Volledig instapklaar.

Lees meer
Neem contact op

123Wonen Eindhoven
Croy 7
5653 LC Eindhoven

T  040-3040400
E  eindhoven@123wonen.nl

Specificaties

  • Max. huurperiode min. 12, indefinite

Bouw

  • Soort Woningen
  • Type Appartement
  • Bouwjaar 2013

Algemeen

  • Beschikbaarheid Per direct
  • Max. huurperiode min. 12, indefinite
  • Interieur Gemeubileerd

Energie

  • Energielabel A+

Indeling

  • Kamers 3
  • Slaapkamers 2
  • Aparte douche Ja
  • Garage Ja , 10m²
  • Tuin Ja
  • Balkon Ja
  • Dakterras Ja

Voorziening

  • Parkeerplaats Ja
  • Lift Ja

Afmetingen

  • Woonoppervlakte 98 m²
  • Perceeloppervlakte 100 m²
  • Woninginhoud 357 m³
  • Tuin oppervlakte 7 m²
  • Balkon oppervlakte 7 m²
  • Dakterras oppervlakte 7 m²
Lees meer
  • Wijk en buurt
    Philipsdorp
  • Bevolking
    Gem. grootte huishouden
    1.5 personen
  • Detailhandel
    Grote supermarkt
    0.6km
  • Inkomen
    Gem. inkomen
    €32.500 p/j
  • Vervoer
    Station
    1.7km
  • Wonen
    Gem. woningwaarde
    €362.000
    Koopwoningen
    20%

Schrijf je in voor onze woningmail, actueel aanbod!

Vergelijkbaar aanbod Eindhoven

Eindhoven
Ulenpas
€ 2.295,- p/mnd
Details
Eindhoven
Icaruslaan
€ 2.350,- p/mnd
Details
Eindhoven
Petrus Dondersstraat
€ 2.300,- p/mnd
Details

Meer informatie aanvragen