9.2 / 10 2037 reviews 
 

Dotterbloem, Kockengen

FIJN WONEN IN KOCKENGEN (voor 12 maanden)
Dotterbloem Kockengen
€2.150,-
per maand
€ 2.150,-
per maand
Dotterbloem Kockengen
  • TypeTussenwoning
  • Interieur Gemeubileerd
  • Woonoppervlakte111 m²
  • Perceelgrootte138 m²
  • Kamers4
  • Slaapkamers2 (1 extra mogelijk)
  • Aangeboden sinds21-12-2025
  • Max. huurperiode 12 maanden  . Aanvang huur bespreekbaar uiterlijk 1 maart 2026 en verlenging huurperiode mogelijk
  • Beschikbaarheid Vanaf 01-03-2026
Vraag informatie aan

Omschrijving Dotterbloem in Kockengen

VOOR 12 MAANDEN TE HUUR:

Ben je op zoek naar een tijdelijke, volledig instapklare luxe woning waar je direct kunt genieten van comfort en sfeer? Zoek niet verder! Deze prachtige gemeubileerde woning aan Dotterbloem 2 in Kockengen is precies wat je nodig hebt.

Binnenkijken? Heel sfeervol!
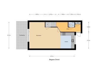
Bij binnenkomst word je verwelkomd in een nette hal met toilet, meterkast, trapopgang en toegang tot de ruime, lichte woonkamer. De royale woonkamer biedt een comfortabel zitgedeelte en een sfeervolle eethoek met een ruime tafel, ideaal voor lange diners met vrienden en familie of om rustig aan te werken of te lezen. De luxe open keuken is volledig uitgerust en maakt koken een plezierige ervaring, terwijl je gemakkelijk contact houdt met je gasten. En als het weer het toelaat? Dan is de fraaie tuin met achterom de perfecte plek om te ontspannen en te genieten van een drankje in het zonnetje. Je hebt zelfs een handige berging van maar liefst 14 m². Handig om tijdelijk je spullen op te slaan.

De woning beschikt verder over:
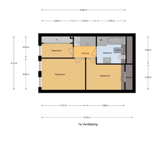
Twee ruime slaapkamers en een aparte walk-in closet;
Een stijlvolle badkamer met wastafelmeubel, toilet, ligbad én een inloopdouche;
Op de zolderverdieping heb je een thuiskantoor én een praktische wasruimte met wasmachine en droger;

De locatie? Perfect!
Kockengen is een rustig en charmant dorp, strategisch gelegen nabij de Randstad. Met de auto ben je via de A2 of A12 snel in steden als Amsterdam, Utrecht, Rotterdam of Den Haag. Liever met de trein? Het NS-station van Breukelen is op slechts 15 minuten fietsen. 

Kortom: 
Een heerlijk huis om 12 maanden van te kunnen genieten! Perfect voor een tijdelijke overbrugging of voor expats die de rust van het platteland willen combineren met de nabijheid van het stadsleven. 

BIJZONDERHEDEN:
Beschikbaar per eind februari 2026/1 maart 2026 
Huurprijs € 2.150,00
Huurperiode 12 maanden – verlenging mogelijk (tussenhuur)                              
Waarborgsom 2x de huur
Woonoppervlak 111 m2 
Voorschot € 225,00 gas/water/licht
Tv en internet € 70,00 per maand
Exclusief gemeentelijke heffingen
Energielabel B
Compleet gemeubileerd 
Niet geschikt voor studenten of woningdelers
Geen huisdieren
Voldoende parkeergelegenheid

Voor deze woning geldt een inkomenseis. Je (gezamenlijke) bruto maandsalaris moet drie keer de maandhuur bedragen. Ben je een zelfstandige ondernemer, dan heb je twee volledige boekjaren van een erkende boekhouder nodig.

Lees meer
Neem contact op

123Wonen Gouda-Woerden
Defensie-Eiland 28
3441VC Woerden

T  0348-233400
E  gouda-woerden@123Wonen.nl

Specificaties

  • Max. huurperiode 12 maanden  . Aanvang huur bespreekbaar uiterlijk 1 maart 2026 en verlenging huurperiode mogelijk

Bouw

  • Soort Woningen
  • Type Tussenwoning
  • Bouwjaar 1993

Algemeen

  • Beschikbaarheid Vanaf 01-03-2026
  • Max. huurperiode 12 . aanvang huur bespreekbaar uiterlijk 1 maart 2026 en verlenging huurperiode mogelijk
  • Interieur Gemeubileerd

Energie

  • Energielabel B

Indeling

  • Kamers 4
  • Slaapkamers 2
  • Extra slaapkamers 1
  • Aparte douche Ja
  • Tuin Ja
  • Tuin ligging Z

Voorziening

  • Parkeerplaats Ja

Afmetingen

  • Woonoppervlakte 111 m²
  • Perceeloppervlakte 138 m²
  • Woninginhoud 383 m³
Lees meer

Schrijf je in voor onze woningmail, actueel aanbod!

Vergelijkbaar aanbod Kockengen

Meer informatie aanvragen