9.2 / 10 2063 reviews 
 

Brabantstraat, Prinsenbeek

Ruime woning met heerlijke tuin.
Brabantstraat Prinsenbeek
€2.250,-
per maand
€ 2.250,-
per maand
Brabantstraat Prinsenbeek
  • TypeEengezinswoning
  • Interieur Gemeubileerd
  • Woonoppervlakte122 m²
  • Perceelgrootte154 m²
  • Kamers5
  • Slaapkamers3 (1 extra mogelijk)
  • Aangeboden sinds23-04-2026
  • Max. huurperiode 24 maanden  Te huur voor 24 maanden
  • Beschikbaarheid Vanaf 22-06-2026
Vraag informatie aan

Omschrijving Brabantstraat in Prinsenbeek

Op een aantrekkelijke locatie vlakbij het centrum van Prinsenbeek ligt deze ruime woning in een rustige woonomgeving met voldoende parkeergelegenheid voor de deur. Sportfaciliteiten, winkels, horecagelegenheden en het Liesbos bevinden zich in de directe nabijheid. Prinsenbeek is een dynamisch dorp met een florerend verenigingsleven. Het gezellige centrum met winkels, restaurants, terrassen ligt ideaal ten opzichte van Breda en de uitvalswegen, de A16 en de A58. De ligging t.o.v. scholen, park, sportaccommodaties en uitvalswegen is perfect.

Het bruisende historische stadscentrum van Breda, met diverse middelbare scholen, hoger onderwijs, een veelzijdig horeca aanbod en verschillende theaters, musea en bioscopen zijn op fietsafstand gelegen. Verder is de parel van het Zuiden; het voetbalstadion van NAC, met de fiets in 10 minuten bereikbaar. Antwerpen en Rotterdam zijn zowel met het openbaarvervoer als met de auto goed bereikbaar.

Indeling;
Begane grond; 
Entree/hal, trapopgang naar de eerste verdieping, mooi deels betegeld toilet, en vanauit de hal toegang tot de woonkamer.
Gezellige woonkamer voorzien van houtkleurige tegelvloer met vloerverwarming, houtkachel en airconditioning. De moderne keuken is in hoekopstelling voorzien van 5-pits gaskookplaat, ruime boven en onderkasten, RVS afzuigkap, RVS spoelbak,koelkast met vriesvak, vaatwasser, oven/magnetron en close in boiler. vanuit de keuken toegang tot de achtertuin.

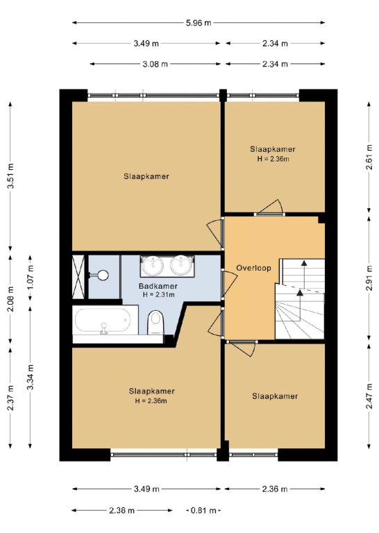
Eerste verdieping; 
Overloop welke toegang geeft tot 4 slaap(werk/kasten)kamers, de badkamer en vaste trap naar de 2e verdieping. Alle slaapkamers zijn voorzien van een mooie laminaatvloer en de master bedroom van airconditioning.
De luxe badkamer heeft een ligbad, douche, dubbele wastafel in meubel, toilet en design radiator.

Tweede verdieping; 
Overloop met opslagruimte en hier bevinden zich de wasmachine en droger.
Hier bevindt zich tevens nog een enorme slaapkamer met twee dakkapellen.

Tuin;
De achtertuin is gelegen op het zuiden en voorzien van een overkapping en een ruime berging over de gehele breedte. De achtertuin is tevens achterom te bereiken.

Bijzonderheden;
- Toppertje op schitterende locatie
- Energielabel A
- 12 zonnepanelen 
- Te huur voor 2 jaar 
- Borg 2 maanden huur

Lees meer
Neem contact op

123Wonen Breda
Verlengde Poolseweg 16
4818 CL Breda

T  076-762 00 86
E  breda@123wonen.nl

Specificaties

  • Max. huurperiode 24 maanden  Te huur voor 24 maanden

Bouw

  • Soort Woningen
  • Type Eengezinswoning
  • Bouwjaar 1967

Algemeen

  • Beschikbaarheid Vanaf 22-06-2026
  • Max. huurperiode 24 te huur voor 24 maanden
  • Interieur Gemeubileerd

Energie

  • Energielabel A
  • Aanwezige isolatie Dakisolatie, vloerisolatie

Indeling

  • Kamers 5
  • Slaapkamers 3
  • Extra slaapkamers 1
  • Aparte douche Ja
  • Tuin Ja

Voorziening

  • Parkeerplaats Ja
  • Airco Ja

Afmetingen

  • Woonoppervlakte 122 m²
  • Perceeloppervlakte 154 m²
  • Woninginhoud 430 m³
  • Tuin oppervlakte 154 m²
Lees meer

Schrijf je in voor onze woningmail, actueel aanbod!

Vergelijkbaar aanbod Prinsenbeek

Meer informatie aanvragen