9.2 / 10 1988 reviews 
 

Oranjepassage, Uden

Tijdelijk 12 maanden beschikbaar!
Oranjepassage Uden
€1.075,-
per maand
  Oranjepassage Uden Nieuw
€ 1.075,-
per maand
Oranjepassage Uden
  • TypeAppartement
  • Interieur Gemeubileerd
  • Woonoppervlakte50 m²
  • Kamers2
  • Slaapkamers1
  • Aangeboden sinds06-10-2025
  • Max. huurperiode 12 maanden 
  • Beschikbaarheid Vanaf 16-10-2025
Vraag informatie aan

Omschrijving Oranjepassage in Uden

Sfeervol gemeubileerd appartement in hartje Uden – tijdelijk beschikbaar - maximaal 12 maanden!

Dit smaakvol gemeubileerde appartement is ideaal gelegen in het centrum van Uden, op loopafstand van winkels, restaurants en voorzieningen.

 

Bent u geïnteresseerd? Vraag een bezichtiging aan via de website! Telefonisch kunnen wij uw aanvraag niet behandelen.

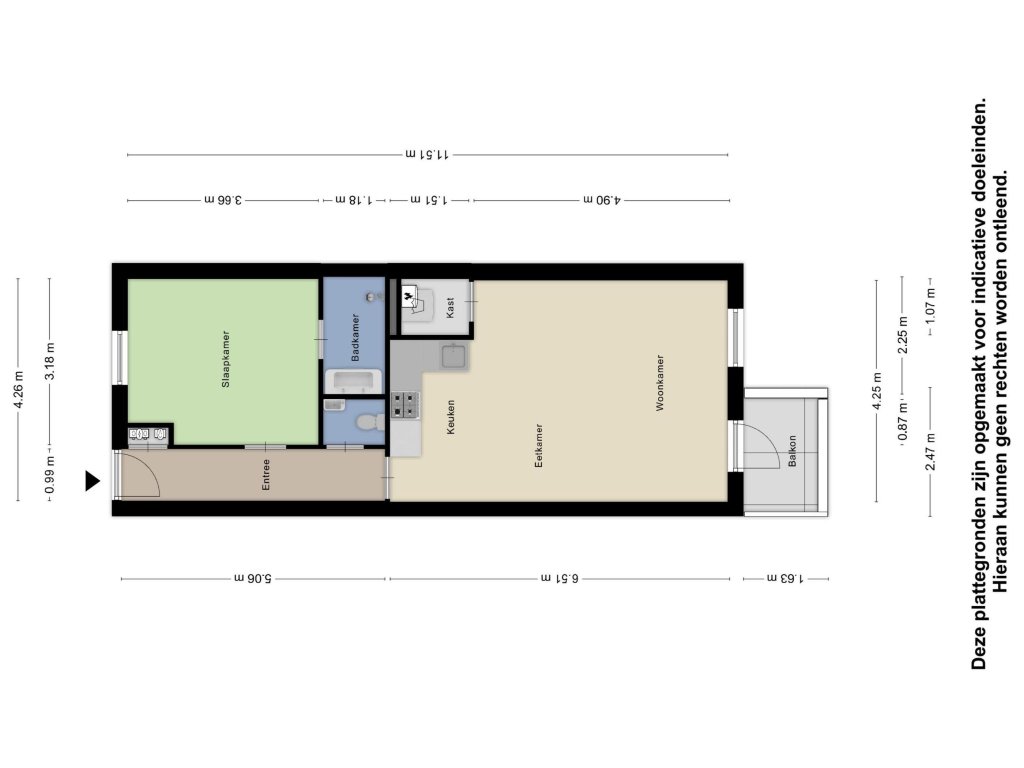
Bij binnenkomst treft u de hal met meterkast en toilet. Vanuit hier heeft u toegang tot de ruime slaapkamer en de gezellige woonkamer met open keuken.
De keuken is uitgerust met inbouwapparatuur zoals een koel-vriescombinatie, gaskookstel met afzuiging en alle benodigde inventaris. Zowel de keuken als de woonkamer zijn stijlvol ingericht en direct klaar voor gebruik.

Via de woonkamer bereikt u het zonnige balkon, heerlijk vrij gelegen zonder inkijk – perfect om van de buitenlucht te genieten.
De comfortabele slaapkamer bevindt zich aan de andere zijde van het appartement en biedt directe toegang tot de nette badkamer, voorzien van een inloopdouche en een wastafelmeubel met spiegel.

Kortom: een instapklaar, compleet gemeubileerd appartement met een fijne ligging in het centrum van Uden!

Bijzonderheden:

- Parkeergelegenheid is betaald in het centrum van Uden, er zijn gratis parkeergelegenheden op loopafstand.
- Goed afgewerkt, gemeubileerd en instapklaar 2-kamerappartement.
- Goed geïsoleerd. Energielabel C.

Huurprijs is exclusief het verbruik van gas, water, elektra en tv, internet.

 

Lees meer
Neem contact op

123Wonen Den Bosch
Rompertpassage 37A
5233 AP 's-Hertogenbosch

T  073 - 611 15 82
E  denbosch@123wonen.nl

Specificaties

  • Max. huurperiode 12 maanden 

Bouw

  • Soort Woningen
  • Type Appartement
  • Bouwjaar 1985

Algemeen

  • Beschikbaarheid Vanaf 16-10-2025
  • Max. huurperiode 12
  • Interieur Gemeubileerd

Energie

  • Energielabel C

Indeling

  • Kamers 2
  • Slaapkamers 1
  • Aparte douche Ja
  • Balkon Ja

Afmetingen

  • Woonoppervlakte 50 m²
  • Balkon oppervlakte 3 m²
Lees meer
  • Wijk en buurt
    Centrum
  • Bevolking
    Gem. grootte huishouden
    1.5 personen
  • Detailhandel
    Grote supermarkt
    0.3km
  • Vervoer
    Station
    14.7km
  • Wonen
    Gem. woningwaarde
    €245.000
    Koopwoningen
    41%

Schrijf je in voor onze woningmail, actueel aanbod!

Foto's

  Pand
  Pand
  Pand
  Pand
  Pand
  Pand
  Pand
  Pand
  Pand
  Pand

Vergelijkbaar aanbod Uden

Meer informatie aanvragen